玄关柜设计,立面图,方案参考,六个方案.#图文伙伴计划 居家 - 抖音

相关图片

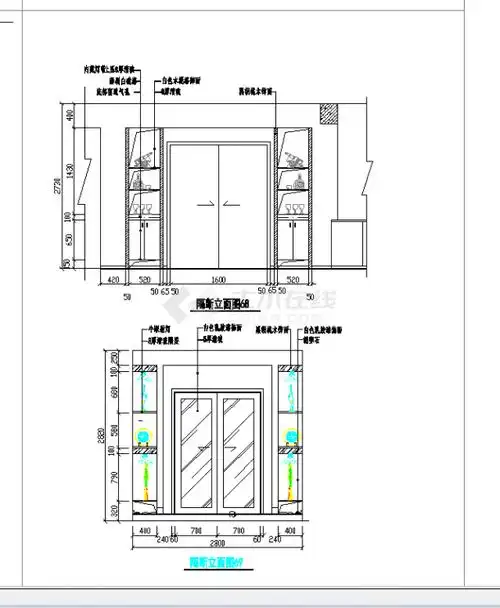
玄关立面图

37款室内玄关立面cad图

玄关立面图2

某地各式玄关立面详图下载cad图纸

现简约室内玄关施工cad立面图效果图

随机推荐

人物肖像松动才是素描的精髓

于是学着在草地上拍了很多~四人拍照姿势学起来! .

赵丽颖精美壁纸,总是那样的温婉文静和美丽

石港中学

花点时间丹麦重瓣风铃盆栽紫色鲜花绿植室内办公室植物装饰

袁世凯去世前预言当下只有三个人可能拯救中国分别是谁

螺旋卷烫发 大学毕业后的又一次螺旋卷烫发! 好喜欢!

国外创意裸眼3d投影作品鉴赏