仅仅花了9万元,就把50平米的二居室装修的美轮美奂!-新力琥珀园装修

相关图片

8万50平米现代小户型/一房装修效果图,50平精致小窝装修案例效果图

北京温泉花园a区2室1厅1卫50平米户型图

50平米不到如何打造出两居室,看完你也会了.#室内设计 #户 - 抖音

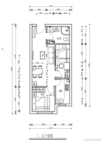
50平米小户型单身公寓装修设计平面图

50平米大开间求大神设计,最好改两居

随机推荐

肖战直播出图#帅且成功!#肖战##肖战小括号

鹿晗和关晓彤七年恋情甜蜜与坚守的典范

我是一个纹身师 #纹身 #刺青艺术 #帅就完事了 #保德 - 抖音

tnt时代少年团 q版

hiphop风格壁纸是时候换一换你的屏保和头像了

充气【】椰树成人游泳圈双层加厚男女充气海浪游泳浮圈救生圈海边泳池

黄子韬 #杨紫 真希望他俩二搭一下!

宋芸桦青春率性时尚街拍,优雅大气,高清图片