自由组合儿童书柜带门柜子实木松木简易置物储物书架书橱简约现

相关图片

转角书柜(英伦1#)

北欧简约现代带门书房组装书架单门储物柜收纳柜置物架简易书桌书柜

cn302998613s_书架(s82726-a)有效

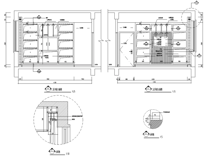
[图块/节点]宾馆家具--书柜立面

书房装饰立面图

随机推荐

小清新的蓝色海水

2017新款秀禾服陈晓陈妍希同款龙凤褂嫁衣新娘结婚敬酒服旗袍女夏

虞书欣 #procreate #我是原创插画师 #q版人物 #头像分享 #啡Ζ

运动小人|插画|商业插画|三块小石头_原创作品-站酷zcool

【动作/奇幻】西游记续 15集全(cctv11hd)

动漫# #二次元# #q版男生动漫# #q版# #q版人物# #素材# #绘画素材

死亡卡通,向量,在白色背景上的死神漫画

又开始了搞笑表情包聊天图片表情