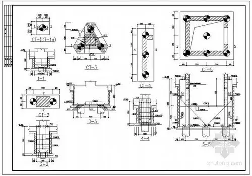
承台配筋大样图

相关图片

桩承台基础垫层

分享桩基承台构造详图资料下载

如果图纸上给的四桩承台标高是-12.550地下三层,如图所示

桩承台

桩承台配筋样式选择和布置

随机推荐

一眼心动佛系网名昵称.看淡一切的网名.有禅意的网名.抖音搜【 - 抖音

2021夏季解暑短发16款,很美很清凉,你剪了吗

【小鬼王琳凯】20210427小鬼王琳凯冬奥宣传大使小鬼/王琳凯/偶8/o8

王心凌12岁嫩照曝光登节目飙舞跳disco实力超强

塔罗牌个性创意高清手机壁纸

日本明治三十九年旭日银币

王者荣耀:王昭君技能介绍及使用技巧