女童爵士舞舞蹈儿童嘻哈街舞流苏表演女孩秋冬季儿童演出服

相关图片

超酷街舞头像分享

第二期‖超酷breaking街舞头像 - 哔哩哔哩

女童走秀潮服儿童嘻哈街舞爵士舞套装女孩六一模特t台时装演出服黑

女童jazz爵士舞演出服女孩露脐长袖长裤嘻哈hiphop街舞套装练功服

少儿街舞服装嘻哈风炸街男童演出服儿童酷帅hiphop表演服潮服套装

随机推荐

这竟然是林心如?与霍建华结婚8年,终究走上了另一条路

日本杂志清纯封面

henry刘宪华7年女友曝光 henry历任绯闻女友大盘点

风格7-古风书法风格

吴亦凡的前半生:出生,出道,出名,出狱,出境 !在监狱还能出歌吗?

杨采钰还在上学,她与周冬雨,古力娜扎是大学同班同学

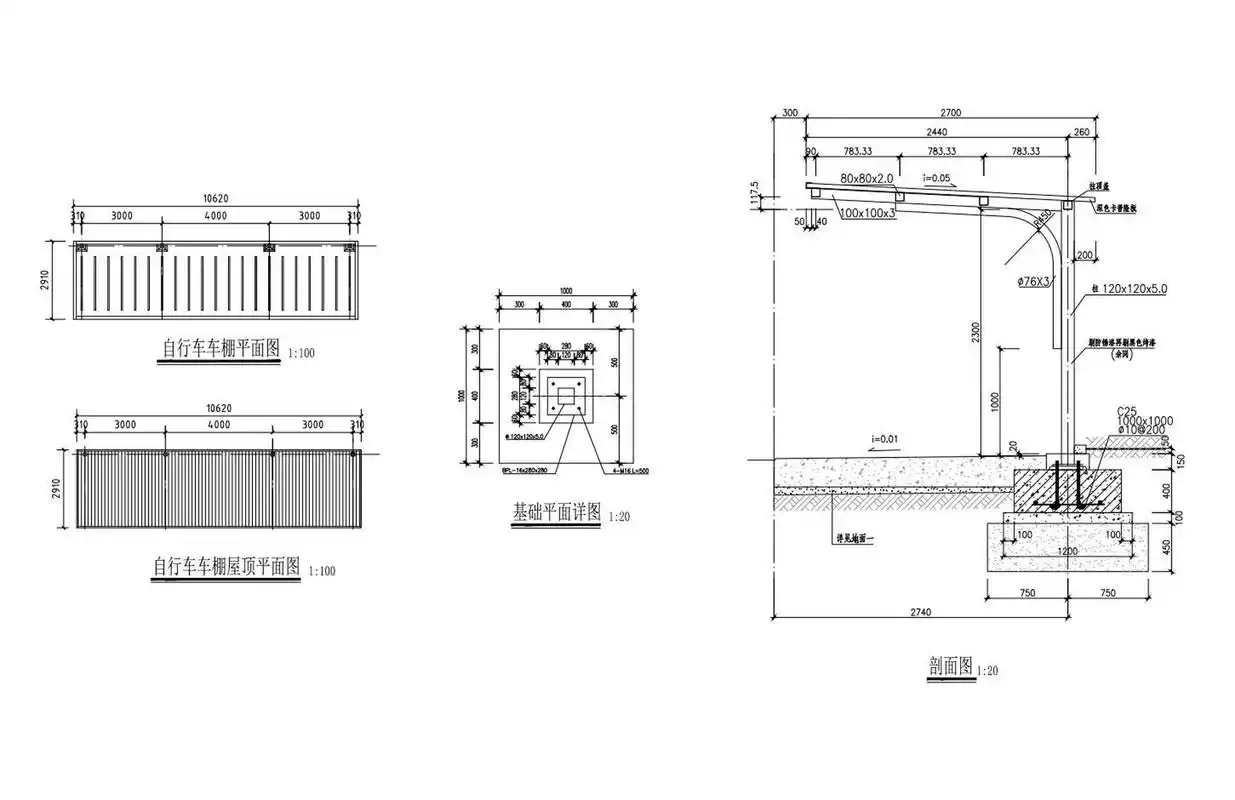
自行车棚施工图

组图:被刘嘉玲赞是天生的演员 胡杏儿大方分享平衡家庭事业经验