[广东]深圳国际园林花卉博览会公园景观设计施工图

相关图片

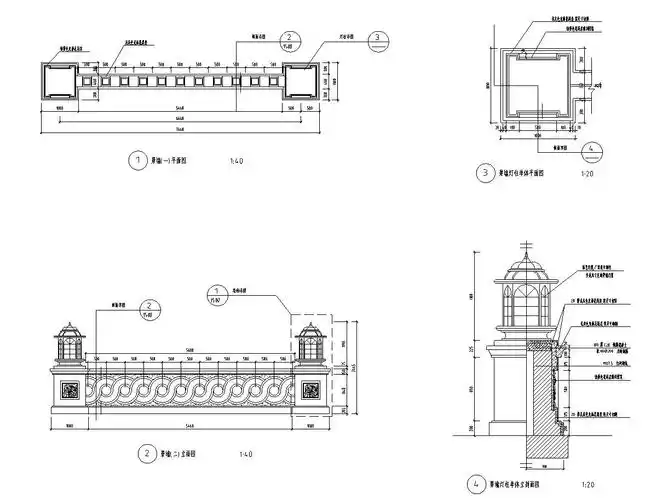
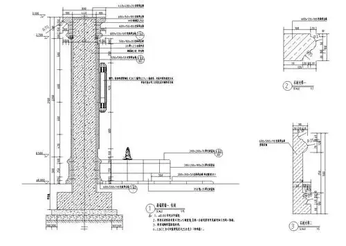
高端景墙一做法标准(2017年最新资料|知名地产设计院)-园林景观节点

[广东]观澜湖高尔夫球会景观设计v1区全套施工图设计

精选中式马头墙cad施工图景墙建筑美丽乡村入口标识青铜瓦坡屋面

仿古建筑景墙施工图cad

景墙施工详图-园林景观节点详图-筑龙园林景观论坛

随机推荐

少年的你获香港金像奖小北寸头易烊千玺新作光头抢镜

王一博的2021年九月之二

47岁林心如坚持吃素,曝霍建华无肉不欢,刘德华曾黎也常年吃素

气球环创100多种超萌的气球动植物与卡通造型玩爆各种场合

约会篇灯光炫影浪漫过渡数万平的园林幻境目之所及,10万盏灯海,璀璨

她是靳东妹妹,儿女双全老公成迷

星恒电源股份有限公司

古风海报分享|水墨山水画禅意山水画今天给大家分享一组国风水墨山水