农大东校区食堂建筑设计立面图3

相关图片

风味餐厅立面图

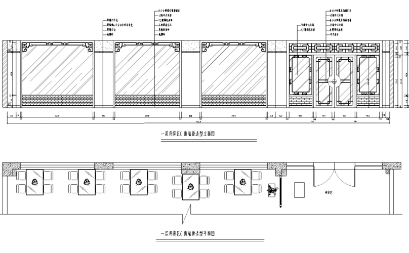
用餐区立面图

[广西]梧州大学食堂室内装修施工图

餐厅经典分空间cad立面图库

餐厅立面图

随机推荐

刘德华11岁独女住6亿豪宅被宠上天或能继承数十亿身家

戏内甜如蜜,戏外陌路人!这些老死不相往来的情侣,是怎样闹僵的

不知道自己年龄,不会算数,明星们请不要拿无知当可爱_张艺兴_观众_包

素描石膏几何体绘画#石膏几何体 #素描 #创意美术 #绘画 - 抖音

齐刘海短发好看吗 女生齐刘海短发发型图片

硬糖少女303

小腿皮肤长癣

重磅jeffdean等提出自动化分层模型优化cpugpu等异构环境性能提升超60