2块相同宅基地建起的农村房10x11米你更喜欢哪个样式

相关图片

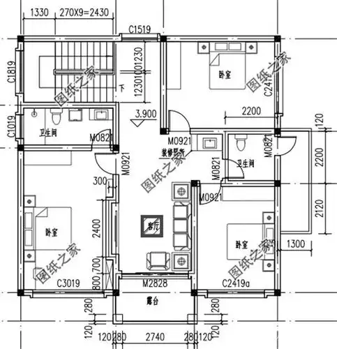
10米x12米自建房设计图,下一个建房的就是你

主体造价18万能搞定二层农村别墅,16套进深10米二层农村自建房

10米x12米自建房设计图,下一个建房的就是你

农村10米x10米两间三层平顶楼房设计图,主体花30万建好 - 盖房知识

农村建房开间11.5米,深10米,一楼要三个卧室,怎么设计比较好?

随机推荐

马伊琍又换新发型,仅仅留长一点点,搭配刘海也太减龄了吧!

江语晨简介 江语晨个人资料,江语晨个人资料

【cf】奥摩-x横空出世,不负玩家期待!

黄龄超话#时光音乐会寻找消失的歌手#这次不仅唱歌,我还教了大家一起"

林忆莲

《爱情有点蓝》被赞很有爱 佟凡爱情事业双给力

moedu轻奢侈品牌女靴长筒靴不过膝时装靴2022年秋冬季新款复古低跟

彭于晏图片彭于晏危城剧照图片