卡通老师上课gif动图 教师讲课黑板透明背景免扣图动态图片素材

相关图片

老师上课讲课卡通人物png素材

老师给学生讲课儿童画怎么画老师给学生讲课简笔画步骤

卡通男老师在黑板前讲课卡通教师形象5478094png图片免抠素材

讲台上讲课的男教师矢量素材

张老师曾经在我们学校工作.张老师学而不厌,诲人不倦.

随机推荐

肖战- 堆糖,美图壁纸兴趣社区

宝宝营养炖汤食谱合集6015抓住黄金长高期. 分享九款美味汤谱

37岁女体育老师走红马甲线清晰可见网友还缺学生吗

张慧雯 - 堆糖,美图壁纸兴趣社区

[吴磊][分享]190121 三石弟弟年轻时:穿着红肚兜的哪吒可可爱爱--爱豆

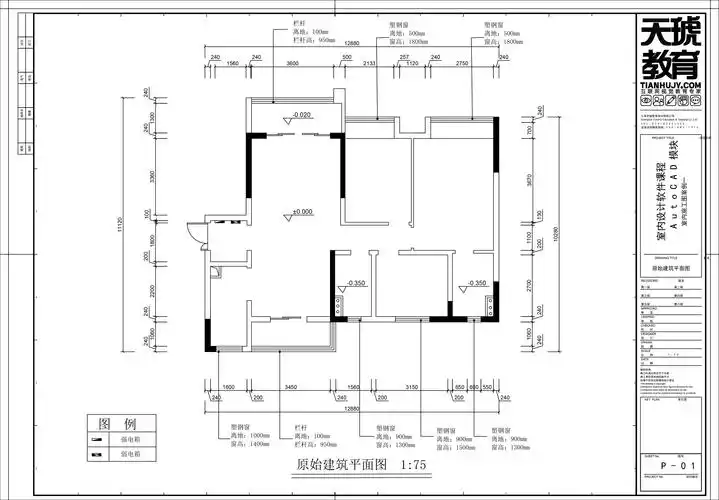
施工图-墙体开线图/原始建筑图/梁位结构图.

成名速度神速,却被黑粉骂了两年,如今越来越火_林允_周星驰_身高

gta5 美女诱人的身姿犯规的曲线