宿舍床位照片生活区宿舍楼生活区宿舍楼和食堂楼长按下面二维码,关注

相关图片

餐后,大家回到各自宿舍进行午休.

富平县立诚中学普高图片

让我们的宿舍成为"星级宿舍"------东苑高级中学高二年级宿舍内务整理

今秋开学投入使用!富阳中学新校园亮相,可容纳学生约2200人~(3)

宿舍管理的三个为什么

随机推荐

高圆圆:清新美貌,演艺圈最美女星|侵权|原创|模特_网易订阅

刘亦菲罕见染白发,本以为不合适,谁知美成"顶级女爱豆"!

背影图片很唯美_雅洪_人物_清风

杨幂巴黎秋日穿搭

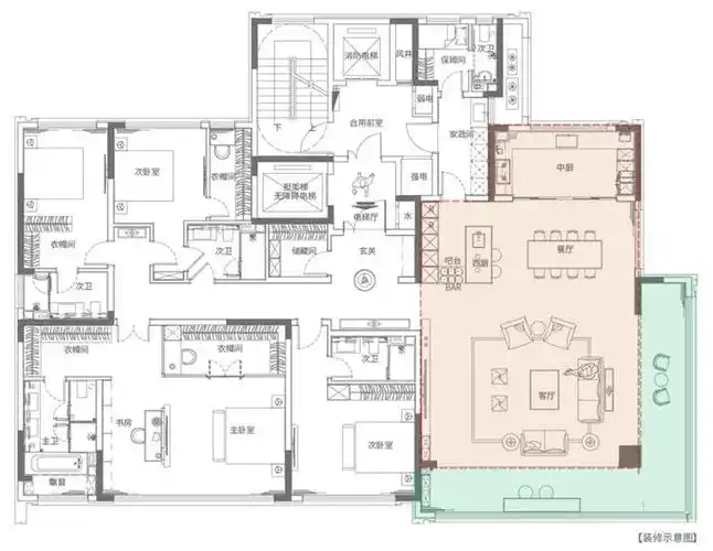
建面约350㎡的大平层户型,其中最引人关注就是这个尺度超阔绰的边厅

这么淳朴的农村房屋你还能看到吗?实拍山东胶东地区农村住房

vip首季仅30元,立即抢购03:15飞哥大英雄大结局:梁飞受了重伤被送去

蓝花楹 国画没骨画 浪漫的紫色 听说昆明有一条街都是蓝花楹 那空气中