接地极接地电阻(接地电阻的测量实验报告)

相关图片

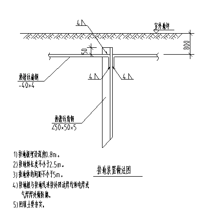
接地装置做法图

电动机的保护接地及接零方法

因为电解离子接地棒在导体中的集肤效应及铜材独有的防腐特性,致使

接地装置示意图

关于避雷带的接地做法,请您查阅标准图集《防雷与接地装置 92dq13 ..

随机推荐

你就这一个表情包吗表情包 - 你就这一个表情包吗微信表情包 - 你就这

风景壁纸,唯美,海滩,天空,清新,沙滩,大海,海洋,壁纸,1920x1080

老照片修复神器

女生头像 | 水下少女.#二次元美图 #高清图片 #美图分享 - 抖音

成都柏木逍遥椅简易家用阳台实木摇摇椅椅户外懒人午休躺椅老人椅

塑造阳光心态如何用阳光心态和正能量去感染和影响周围更多的人

杜淳老婆王灿晒穿搭,白色吊带搭配粉红色长裙,被网友吐槽太土鳖

药瓶里倒出的药片和胶囊