500平米超级大平层,感受总统套房的魅力

相关图片

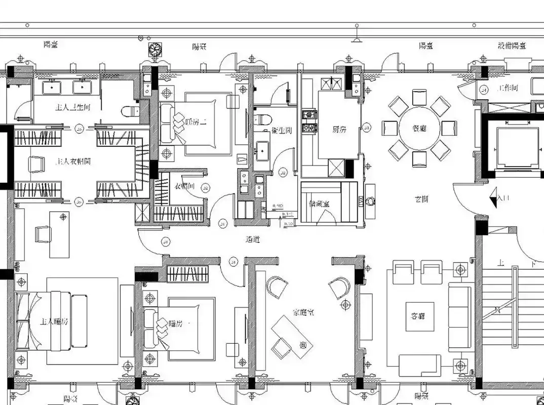
500平米大平层中的天花板户型你爱了么

顶级大平层豪宅户型,打破了传统设计思维,客厅不仅是会客,餐厅不仅是

这个大平层给你一个理想答案!

这应该是比较奢华的大平层户型,自带空中泳池!

别墅豪宅500平米装修案例_效果图 - 500㎡别墅,灵山多秀色,空水共氤氲

随机推荐

轨迹吉他谱 g调_7t吉他教室编配_周杰伦-看谱啦

宋佳各有千秋|张檬|杨洋|陈意涵|小李琳|小宋佳|刘烨(演员)_网易订阅

你永远是我的firstchoice.背影黑长直

青木亚麻灰色染发剂自己在家染头发泡泡植物纯膏女2021流行色显白

天鹅--飞翔篇

通风器和frp采光带的配套使用

龙跃云津上九霄,龙兴云雨天姿骄.乾坤一览天地小,神州图腾任逍遥.

家有小绿满满都是少女心的微景观摆件海贼王小黄