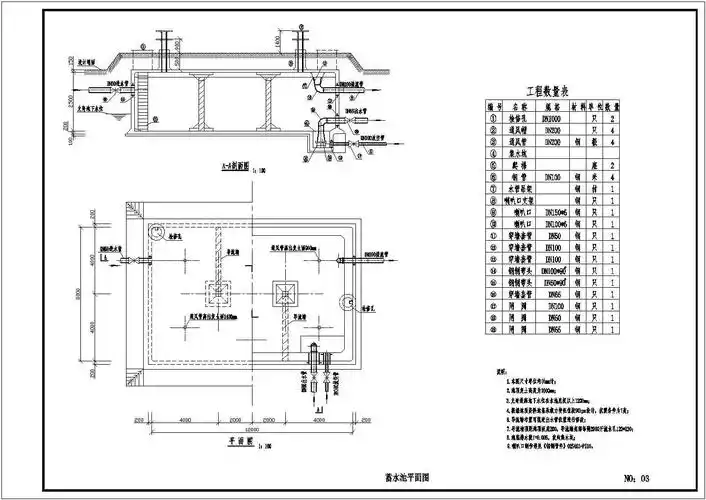
蓄水池设计图

相关图片

知道要画水池的时候,其实我是一脸茫然的,在不断的询问和自己上午摸索

景观水池平面cad套图1

240立方米矩形钢筋混凝土蓄水池图纸

小型景观水池施工大样图

户集水池平面图.png

随机推荐

陈紫函天天有喜2之人间有爱 dvd版全75集主演:张若昀 孙怡 邓伦

如果要说起胡歌最近一部,在电视荧屏上,与观众见面的电视剧作品,那还

服装_女子_男子

魏大勋男大

防静电接地系统工程,静电接地,埋地线,防静电地板接地线打地桩

热血江湖武器怎么去掉魂 - 抖音

盘点爱上摇滚男的10位女明星_伊德尔_郭采洁_宋佳

锁住水分,就在于让肌肤细胞保持水润活力_女物美容网|nvwu.com