某公园景观设计施工图

相关图片

公园设计全套施工图(含:绿化布置图,停车路面做法,木栈桥)-公园景观

20套公园景观设计施工图cad,一定有你需要的!

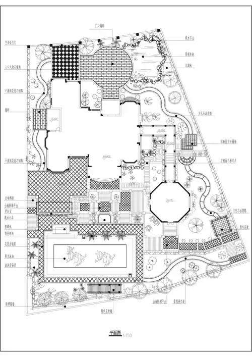
豪华别墅景观配置施工图施工图下载【id:548411474】

景观施工图

某庭院景观施工图共10张图纸

随机推荐

黎姿,1971年10月1日生于香港,演员,流行音乐歌手,为前无线电视(tvb)旗

快来重庆看橘子海吧,一家三口画面太醉人啦.落日下的灯塔,屹立 - 抖音

郭富城才是反油腻第一人不穿大叔装裤子短一截帅气不凡

彼岸花图片高清宽屏电脑桌面主题壁纸

吉克隽逸这裤子穿得太豪放了吧,网友目光全被其"三角区"锁定了

《都挺好》李念太甜!蛋糕纱衣配牛仔短裤超减龄,34岁美回24岁

男性"睾丸"疼的原因是什么?

你是不是傻 - 你这个逼装法是谁教你的,太厉害了!