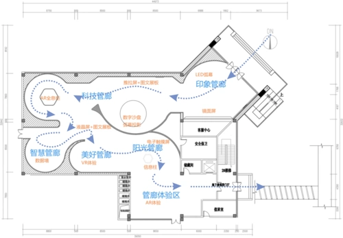
2018展馆平面图

相关图片

德源新城规划展示馆 - 设计兵团_展厅_博物馆设计_展览设计_展示设计

场馆图(点击下载)

是青海第一座具有现代化功能的大型综合博物馆,隶属于青海省文化和

展馆平面图

规划展览馆实例分析ppt

随机推荐

多位嘉宾捧刘德华场,包括王家卫,郑少秋,白雪仙,陈宝珠,陈慧琳,刘嘉玲

神仙漫画可爱女生头像#女生头像#动漫头像#头像 - 抖音

粉色少女心高清卡通电脑桌面壁纸

鬼鬼鬼,美美美[黄色心形r][黄色心形r][黄色心形r] #小鬼王琳凯头像

朴彩英 ros07 壁纸 08onlyforrose

黄子韬徐艺洋恋情曝光 黄子韬与徐艺洋在韩国夜店大秀恩爱,疑正式官宣

万圣节一起活见鬼11月4号悉尼将变成丧尸乐园

幸福的母亲和儿子,漂亮妈妈拥抱孩子概念.线矢量图标.可编辑的中风.