09s304 卫生设备安装图集-01

相关图片

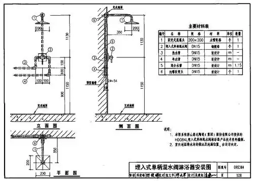
09s304卫生设备安装3

洗涤盆标准图集号09s304,p30页

09s304卫生设备安装3

09s304 卫生设备安装图集-01

09s304图集第128页

随机推荐

刘耀文无限超越班##新生代演员刘耀文

二次元仙气白裙美女桌面壁纸_卡通动漫_壁纸下载_美桌网

丑女意外亲了蜥蜴一口,可她没想到,蜥蜴变成男人要娶她!

毛晓彤爱丽丝梦游仙境大片,金发蓝瞳,好像童话世界里的小公主_长裙

都会被粉丝催着找真爱,就像许嵩那样,粉丝巴不得他早点结婚,胡彦斌最

女生无鬓角短发造型图片_短发发型_西子美发网

梵迪拉泳衣女夏遮肚显瘦时尚游泳衣泡温泉连体泳装可拆卸裙

唯美古风真人女生头像甜美温柔长发美女