高难度挑战,小户型,改三个出租房!

相关图片

她重新装修出租房,花了5个月改造,完工后,众人直夸:太美了!

出租房户型图3dmax非专业人士第一次做

出租房方案设计分享

出租屋改造,求设计师帮帮忙.

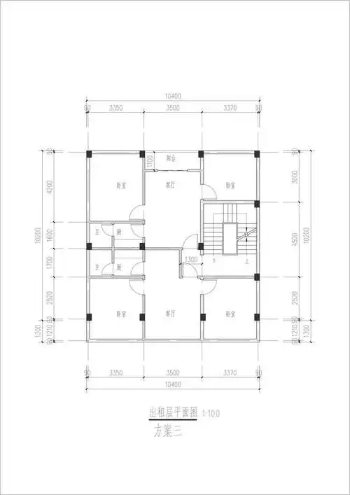
户型设计,自建出租房,3套不计楼梯合共60 平,分成3套,酬!

随机推荐

长安马自达与理想one汽车座舱提供商中科创达战略合作

针管简笔画针管简笔画带涂色

欧豪陌生的恋人

动漫壁纸封面图 ipad壁纸 二次元电脑壁纸_留言_下期_手机

单人复古婚纱照穿婚纱大概是每个女孩子的梦想吧就是那种恰巧的温柔和

从小咬指甲的孩子长大后会变成什么样逃不掉这两种结局

剪影后面观女人放松在海边和指向太阳

孕3月:胎儿已经有"人样儿"了