路面结构示意图

相关图片

某高速公路d合同段k23340为一座桥跨结构为30m的连续箱梁桥高21m共计

在线客服请查阅某高速公路的路基标准横断面图(见图1),路面结构图(见

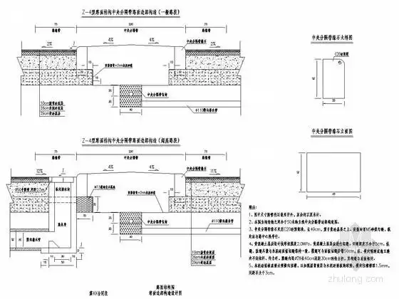
高速公路z-4型路面结构中央分隔带路面边部构造详图(超高路段)

公路工程k11 120~k20 260合同段位于海拔3000m以上的地区,路面结构

中央分隔带开口设置在平面交叉位置,路面结构与行车道路面相同,施工时

随机推荐

霸气的化身,宇智波斑

摸摸鱼……#q版 #刘耀文 #稿件展示 #饭圈美工 #约稿

刘昊然 头像

tfboys快乐大本营追梦首秀# 凯源玺8p 修着三个少年的图才发现 真的

微信超拽网名.docx 6页

名侦探柯南300张江户川柯南头像合集萌翻了

原神空荧cp图片

在《家有儿女》中,演员文兴宇出演的爷爷角色让人难以忘怀.