某地区小型别墅建筑设计方案全套图纸

相关图片

装修施工图之立面系统图

占地15x13二层自建别墅设计全套施工图

占地12x15三层自建别墅设计全套施工图 - 乡村住宅在线

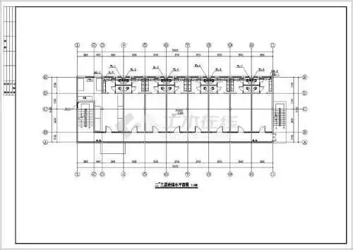
某四层宿舍楼改造工程给排水设计施工图

三层新农村独栋别墅建筑设计施工图(含全套cad图纸)施工图下载【id

随机推荐

回顾:10位撞脸动物的明星王一博还能忍,看到易烊千玺简直是神似

李湘瘦身后连晒多张美照,开心晒高奢日常,凡尔赛发文:越吃越瘦_王岳伦

通用盲盒空盒子批发 卡通玩具盲盒 幸运盒子 手办盲盒包装盒现货

张一山生日快乐!挑战多重人格,暴力,忧郁,神秘,少女等人格高难度切换.

刘亦菲&宋承宪激情吻戏

原创手绘菜谱02超简单的快手菜60香菇蒸鸡

《俊》的笔画顺序

撩妹表情包男女互撩聊天对话