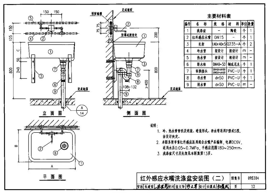
09s304 卫生设备安装图集-01

相关图片

09s304图片大全p29图集

09s304 卫生设备安装图集-01

09s304 卫生设备安装图集-01

09s304图集:卫生设备安装,161页超高清无水印,限时3天手慢无

09s304 卫生设备安装图集-01

随机推荐

大陆明星,高清,帅气,帅哥,tfboys,易烊千玺,帅哥明星,大陆男明星,壁纸

邻里和谐文化墙

赵雅芝的三个儿子同一个妈妈不同爸爸如今颜值差距很大

跳舞小熊表情包动图71

在武汉穿越巴塞罗那,我先走一步!

东风-41际弹道导弹: 脊椎骨的一节_中国_俄罗斯_技术

活塞式压缩机结构ppt_word文档在线阅读与下载_免费文档

在家喝酒可比酒吧香多了