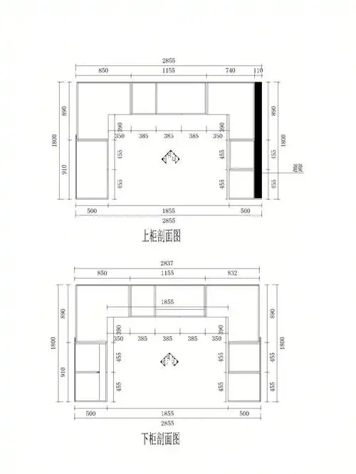
平凡小阿姨衣帽间图纸

相关图片

收纳进行时 | 这样整理衣帽间,释放60%新空间-安邸ad家居生活网

别人家的衣帽间就是这么完美不要太羡慕哦

42㎡公寓全屋定制第六弹75衣帽间尺寸图60

衣帽间尺寸选择技巧,上万网友收藏!

巧妙设计衣帽间 #衣帽间设计 衣帽间彻底翻车了,图一是衣帽间平面图

随机推荐

佩服孙怡,穿黑色西服套装搭配白色衬衫,又飒又美,高级大气|西装|白

杨颖头像

超火情侣手势照推荐给你让你可以低调撒狗粮

左大腿巨大脂肪瘤

鬼脸的介绍

我这有一张房屋平面设计手绘图,求大神用cad帮忙画出来下,特别感谢

手机端商品分类图标psd分层素材

帅气马儿奔跑壁纸 马是一种非常聪明的动物 拥有惊人的长期记忆力