徽州马头墙种类

相关图片

地道的徽派建筑马头墙

401四层新中式微派马头墙别墅设计图纸三层半农村自建房施工图

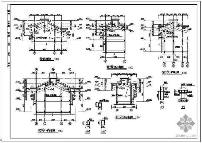
徽派马头墙详图

徽派建筑的马头墙

农村徽派马头墙住宅楼施工图(cad)-别墅建筑-筑龙建筑设计论坛

随机推荐

带上我的宝恒树叶莫吉托94 体验一把小酒版带来的特调微醺快乐 - 抖

贺峻霖开学vlog#贺峻霖戴金丝眼镜真的好帅,真的眼镜焊在脸脸上吧

复古港风背景图

在那个没有整容和ps的年代,她的脸迷倒了无数人.

高质量动漫男头像

9.这两个美女选择的白色靴子,属于比较高端的类型.

时尚巴黎69不漂也能染出青棕色超显白

曹云金未说谎郭德纲徒弟周九良说漏嘴在德云社学习要花不少钱