819推拉窗组装图

相关图片

六轨道推拉窗计价方法(全景断桥推拉窗)#抖音图文来了 六轨 - 抖音

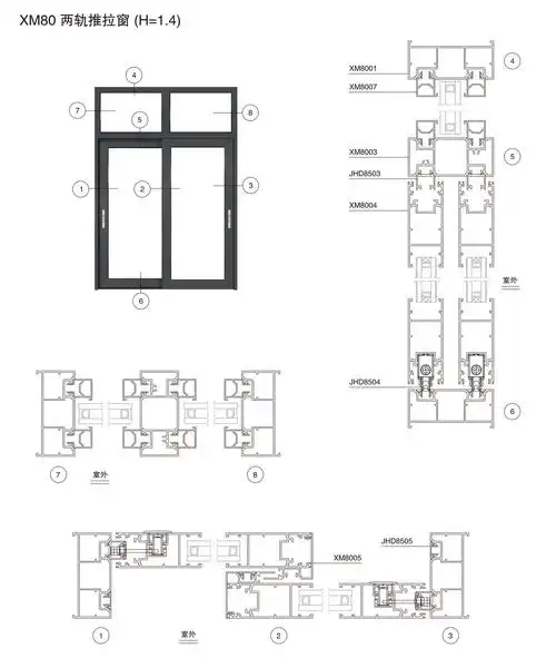
xm80128系列普通推拉窗

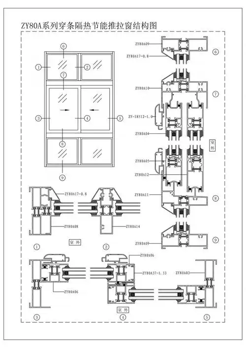
zy80a系列穿条隔热推拉窗

70b推拉窗型材节点图

b80系列推拉窗结构图_门窗型材_家装铝材_装饰铝材_工业铝型材厂家_铝

随机推荐

q版王俊凯一稿多出.自8r 商16r #王俊凯 #约稿 #可 - 抖音

什么_宋承宪_感情

119孙怡亮相阿玛尼mayway香水发布活动怡boss一袭墨蓝色西装优雅随性

沈梦辰到底有多勇敢,微博自曝照片,皮肤竟然比不过宋小宝好尴尬

exo夏日清新写真曝光 灿烈可爱世勋高冷

白内停 冰珍去翳滴眼液 10ml 去翳明目 老年性 白内障 初期 正品_不

红色高跟鞋简谱-隔壁老樊/樊凯杰演唱-水鑫制谱1

小卷短头发烫发发型图片 各种脸型卷头发造型图片