博物馆展厅平面设计方案

相关图片

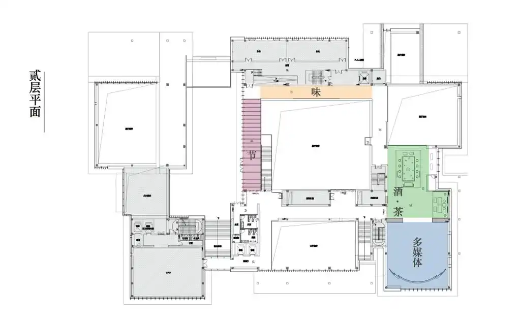
展厅平面图 | 炎黄艺术馆

乡村红高粱产业展览馆商业展示设计图片赏析

安仁坊遗址展览馆,展陈设计详解/城市游荡

科技智慧消防展览馆

宿迁城市展览馆方案设计-一层平面图

随机推荐

原创生完二胎的昆凌瘦成排骨精杰伦的儿子小小周萌翻了

肖战,王一博的博君一肖cp超话粉丝数破400万,你磕过这对cp吗?

原创看了李小冉20岁到48岁颜值变化才知道什么叫岁月不老美人

港式轻奢风装修风格分享,打造家装风尚感其实没有那么难!

韩式梦幻舞台背景海报展板画册矢量背景素材

倪妮身材是真的绝剧中3套红裙造型都惊艳天生的衣架子

14位天生令人惊叹的混血儿|安哥拉|非洲|希腊|澳大利亚|瑞典_网易订阅

童星你还记得几个小时候谢苗的打戏和释小龙不相伯仲你觉得呢