各种类型电梯井道图

相关图片

小型家用电梯设计案例-顺义丽京花园直角开门电梯

电梯- 热门商品专区

一般家用电梯井结构设计施工图(含大样图)

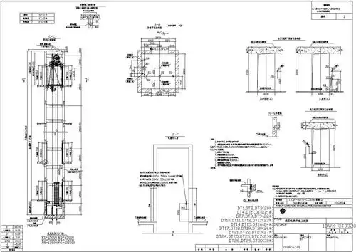
电梯井道土建cad图纸机械设备cad图纸

某办公楼外挂电梯井结构设计施工图

随机推荐

治愈系简笔画/折一千纸鹤给你 许下千纸鹤的心愿 临摹

专属情侣头像 #可爱卡通头像 #超甜情侣头像 #超甜情头 - 抖音

迪欧图 秋季新款男士休闲裤韩版轻奢潮牌修身束脚裤个

易烊千玺朝向中国最具实力青年偶像之路

微信光头头像图片大全【点击鼠标右键下载】

霍金将太空探索视为人类长期生存的关键

手绘 #绘画教程 #画画 #素描动物 #狗狗 #边牧 - 抖音

深圳公司企业宣传片/广告片拍摄制作的3大技巧分享