个楼梯踏步的高度般是多少

相关图片

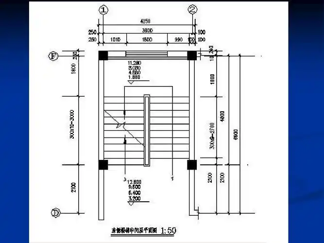
楼梯设计尺寸ppt

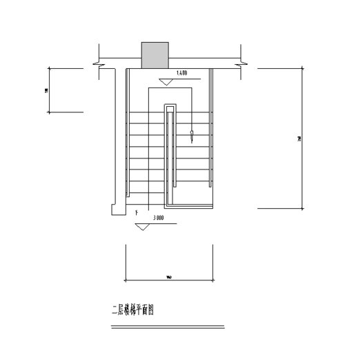
二层楼梯平面图

7mm,踏步宽260(这个步高和步宽是标准住宅公用楼梯的宽度,比较平缓,户

楼梯踏步尺寸 踏面宽度与人的脚长和上下楼梯时脚与踏面接触状态有关.

楼梯阶数

随机推荐

吴磊白色镂空背心##吴磊顺毛小王子造型

蔡依林米兰时装周看秀,穿"挖腰"西装搭配阔腿裤,又美又飒_时尚_个性化

视公开喊话袁娅维支援《歌手 2024》,这是为何?

吉克隽逸素颜大变样,白了不止两个度,辣妹女王范全无满满素人感_皮肤

《下山》钢琴谱 示范 发布

日本浮世绘里的美丽女性缺少既视感

女童绑带凉鞋2021夏季新款韩版平底儿童鞋10小学生12岁公主中大童

不同画风的春丽漫画筋肉娘形象结实粗壮的肌肉腿实在诱人