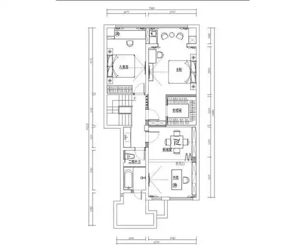
平面方案200平复式这样布置

相关图片

复式楼户型优化案例

北京买房70年loft精装复式跃层地铁200m

户型图该商户其他案例同户型同风格同价格更多 >家居百科装修合同装修

2017-05-16浏览量:3204 户型结构: 复式 设计师

一套200多平复式楼,请大家帮忙指点下.谢谢!

随机推荐

沙雕头像:沙雕微信头像,你值得拥有

54岁#刘嘉玲#也过儿童节!晒年轻时美照引回忆,化烈焰红唇明艳动人

张天爱运动时尚大片来袭!细腰长腿惹人羡慕,身材曲线真迷人

刘涛当主播后衣品更高白色亮片西服套装干练利落真有女总裁范

世界上最丑陋的女人,简直看到想吐

最美四月天,湖北麻城赏杜鹃.

闺蜜头像霸气高冷一对高清好看的闺蜜头像ins高级质感高冷图片

素颜好看的女人,都少不了这4个特征,是天生的清纯"少女脸"_女生_皮肤