分享现代卧室立面图资料下载

相关图片

分享现代主卧室立面图资料下载

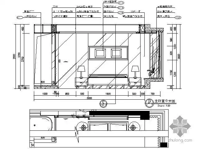
主卧室立面图

[分享]主卧立面图资料下载

43个主人房及卧室立面装修方案图集

现代主卧室背景墙立面图

随机推荐

09s304 卫生设备安装图集-01

只有努力拼搏

procreate #绘画 #线稿练习 #procreate绘画 #画画 #杨颖angela

最新整理3dmax全部命令中英文对照表az

武侠梦 #古风 #女侠 披甲佩剑,飒爽柔情. - 抖音

四开的纸到底有多大,图片1.4开纸的尺寸

匠心妙笔--手绘视角的山西古建筑

李敏镐搞怪