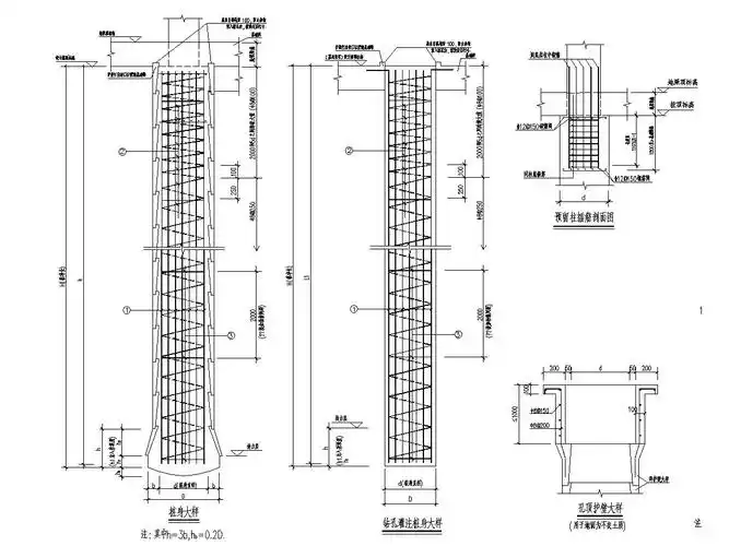
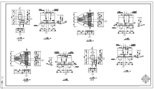
桩基础详图

相关图片

灌注桩基桩设计与构造

桩基配筋图.jpg

桩基础

亲们,帮我查一下桩基钢筋笼的组成及各部分的特点

某地下室桩基节点构造详图 图纸包括: 桩设计说明,基础详图共3

随机推荐

肖战锁屏壁纸|肖战|壁纸_新浪新闻

漩涡鸣人短发的高清桌面壁纸:宽屏:高清晰度:全屏

林俊杰出道21周年

这居然是袁娅维的本名

彩色开学报到的卡通女老师

手绘烧烤图鉴.你最喜欢吃哪种烤串?猎奇向:烤猪眼睛,烤脑花, - 抖音

图文永援圣母苦难中的安慰6月277张高清圣像

ghnatygren美人鱼泳彩虹比基尼泳衣儿童温泉泳装女童游泳衣裤套装