长发红色裙子美女孙芮壁纸

相关图片

孙芮壁纸

孙芮今天终于能见到我哥了快乐源泉孙芮

很高兴认识你孙芮 虽然有些迟,但是想陪你一起走属于你的花路

孙芮国风之夜步香阶直拍旗袍扇子舞focus新增竖版

孙芮

随机推荐

当红小生黄轩:在龙年央视春晚大放异彩|杨幂|老狼|胡歌|实力派演员

16年前的神剧,主角销声匿迹,配角如日中天,还有《爱情公寓》中的她!

绚丽海棠

被瘦下来的韩红惊艳到穿西装配金丝眼镜如霸总气质都变了不少

淡雅书香头像图片_微信头像图片大全

名家观点-友财网-为互联网投资者而生-yocajr.com

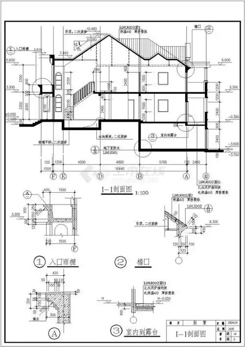
美式别墅详细设计施工全套建筑平立面cad图纸

景观色彩|来自大自然的清新配色方案-景观设计-筑龙园林景观论坛