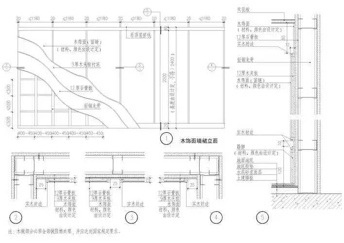
电缆井施工cad设计大样图

相关图片

曾德雄住宅项目建设工程设计方案批前公示

09j801:民用建筑工程建筑施工图设计深度图样

国标图集03d501_3-p,40

[广东]现代风人民公园景观优化提升施工图

输水隧洞钢筋图纸设计

随机推荐

【迪丽热巴×王一博||热播||踩点向】unstoppable(逼疯up的踩点向)

78可爱少女心闺蜜头像简笔画简笔画教程

西装西服证件照身份证一寸照片模板免抠图片影楼照相馆正装人物海报

古力娜扎elle风尚大典:珍珠挂脖礼裙,优雅高贵,美得令人惊叹|模特

吴谨言洪尧恋情曝光,两人疑似同居,男方曾是相亲节目的男嘉宾

疯了本i腿抛弃了后脑勺专心i腿了任嘉伦真是我见过的腿和脚踝长得最

幼儿园自制玩教具变废为宝乐器作业手工diy成品琵琶材料包半成 - 抖音

赵丽颖给生活比个耶##赵丽颖的黑色手套##赵丽颖的黑色手套