整套施工图(图服限制最多上传9)张#cad #cad #cad教程 #cad代画

相关图片

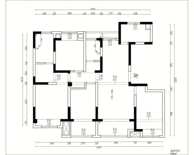
接全套施工图平面图学生作业自装设计

某三层办公楼建筑结构全套施工图纸

某乡村别墅全套建筑设计cad施工图

某旅馆建筑施工设计方案图纸(全套)

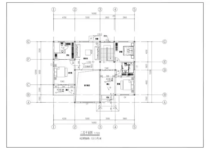
占地16x12二层自建别墅设计全套施工图

随机推荐

周杰伦《功夫灌篮》秀绝技 靠球技打赌赢得四千

李易峰卡拉出席活动神仙同框寸头李易峰又a又暖

angelababy杨颖带儿子飞巴黎,小海绵穿上万元鞋子惊到网友7515 小

天空创造力在天空中的女人的手一颗红色的心照片

关晓彤晒新随拍

男明星那么多,但是只对你有感觉#手机壁纸 #文案 #李钟硕# - 抖音

《青簪行》前途未卜,杨紫古装颜值再惹争议,网友:没必要营销

18岁女生初长成,赵今麦黑色亮钻无袖裙,秀出不一样的成熟感