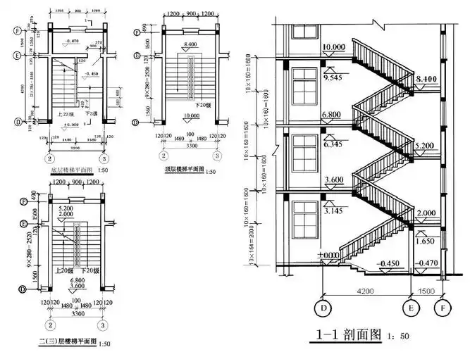
楼梯各层平面图

广联达新更新的楼梯按照图纸要求一个一个做的但是平台板还是低于柱子

图片尺寸635x507

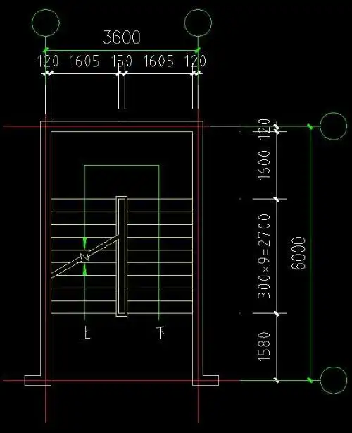
建筑图纸楼梯平面图这个楼梯上下指示标的对吗

图片尺寸600x503

某多层住宅楼楼梯设计cad施工详图

图片尺寸1440x1020

楼梯如何绘制

图片尺寸407x742

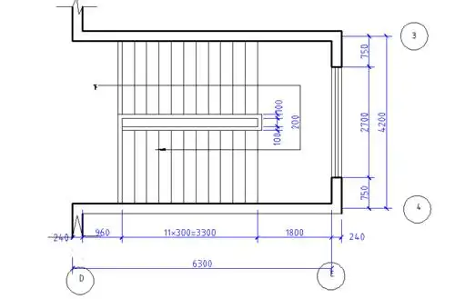
二层楼梯平面图

图片尺寸591x600

一楼楼梯和上面五层不一样要怎么算工程量?

图片尺寸4095x2303

楼梯平面图

图片尺寸1293x831

【设计图纸】全套多层住宅楼楼梯详图(精选cad图例)

图片尺寸1311x927

楼梯标准平面图

图片尺寸500x614

教你读懂楼梯平面图!

图片尺寸825x1247

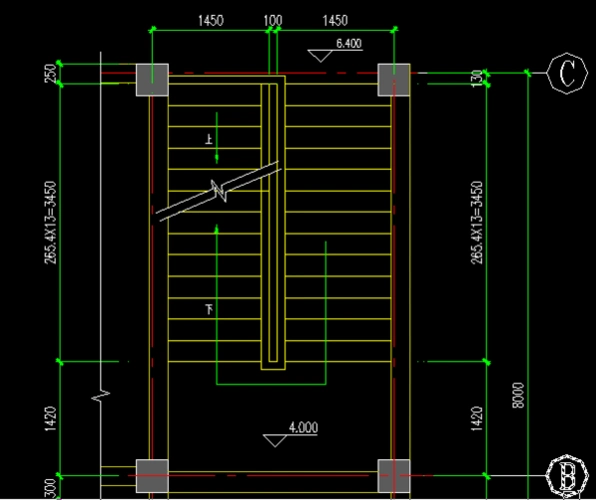
楼梯间顶层平面图

图片尺寸480x640

楼梯标准层平面图

图片尺寸560x420

土木工程毕业设计楼梯建筑图

图片尺寸1263x893

楼梯间平面图

图片尺寸971x513

建筑楼梯间首层标准层顶层平面图的异同

图片尺寸488x840

楼梯平面图表示

图片尺寸1080x810

底层楼梯平面图 :50

图片尺寸1080x810

楼梯的平面图

图片尺寸769x506

楼梯平面图

图片尺寸960x1280

底层楼梯 上 下 中间层楼梯 顶层楼梯 下

图片尺寸1080x810