接地极做法

如何降低接地电阻值及人工接地制作安装示意图

图片尺寸640x515

防雷接地是什么解决方案华强电子网

图片尺寸468x258

基于工程实例,解读防雷接地的施工流程及工艺做法

图片尺寸712x507

3.8.4 降阻剂,垂直水平接地体做法图

图片尺寸712x331

因为电解离子接地棒在导体中的集肤效应及铜材独有的防腐特性,致使

图片尺寸700x422

发电厂设备接地的详细方法及现场应用

图片尺寸640x565

3,使用截面为30mm×3mm的铜排,沿墙体四周分别均布安装环形接地母排

图片尺寸1241x836

山东离子接地极金昊源特别先进工艺降阻显著

图片尺寸683x574

接地极造价(接地极工程量怎么算)

图片尺寸860x1218

目录 一,基本规定 二,外电防护 三,配电线路 四,接地接零 五,重复

图片尺寸359x597

紫 铜

图片尺寸1295x915

接地极做法

图片尺寸669x494

避雷接地极的地极问题(实用)

图片尺寸894x648

人工接地极的做法图解佰利嘉为您解答

图片尺寸650x455

防雷接地焊接正确做法.png

图片尺寸728x493

4欧就是4欧姆,正规的接地极的做法

图片尺寸913x641

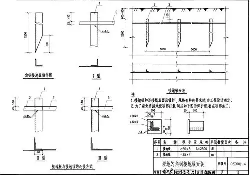
接地极的安装

图片尺寸650x498

电井接地做法

图片尺寸1440x1920

镀锌钢管接地极 接地镀锌钢管 热镀锌接地装置 镀锌接地体接地棒

图片尺寸296x350

接地极做法示意图-model.pdf 1页

图片尺寸800x565