15d503防雷与接地图集

全汇总15d防雷与接地图集合订本6套海量图文数据随时查看

图片尺寸991x683

防雷接地图集防雷15d501接地图集

图片尺寸1080x810

d503d505防雷与接地下册2016年合订本

图片尺寸1600x1154

全汇总15d防雷与接地图集合订本6套海量图文数据随时查看

图片尺寸998x643

15d503 利用建筑物金属体做防雷及接地装置安装(完整).pdf

图片尺寸792x564

15d503利用建筑物金属体做防雷及接地装置安装抢先看

图片尺寸1600x1131

15d503《利用建筑物金属体做防雷接地装置图集》第一册,共二册

图片尺寸640x456

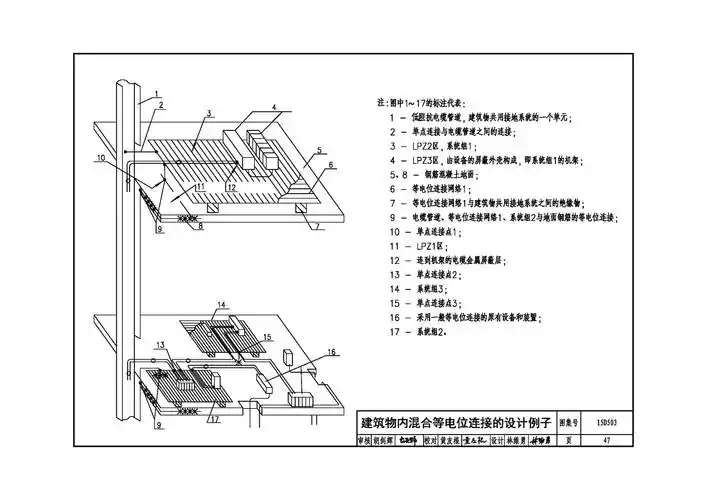
15d503更改说明: 1,第47页,示意图中,标注13和15引线延长到对应点上.

图片尺寸1600x1131

防雷接地图集

图片尺寸656x460

15d503图集33页谁知道

图片尺寸1534x1091

15d503《利用建筑物金属体做防雷接地装置图集》第二册,共二册

图片尺寸640x456

15d503利用建筑物金属体做防雷及接地装置安装抢先看

图片尺寸1600x1131

防雷与接地 下册 2016年合订本 (15d503,14d504,15d505)电气图集

图片尺寸800x800

15d503利用建筑物金属体做防雷及接地装置安装抢先看

图片尺寸1600x1131

15d503《利用建筑物金属体做防雷与接地装置安装》

图片尺寸1188x1679

全汇总15d防雷与接地图集合订本6套海量图文数据随时查看

图片尺寸720x505

15d503利用建筑物金属体做防雷及接地装置安装抢先看

图片尺寸1600x1131

15d501建筑物防雷设施安装图集

图片尺寸960x679

防雷接地大样图

图片尺寸560x403

15d503利用建筑物金属体做防雷及接地装置安装抢先看

图片尺寸1600x1131