房屋平面图楼梯怎么画

简单式钢结构楼梯平面立面剖面图

图片尺寸610x789

室内楼梯平面图欣赏

图片尺寸697x996

平行双跑楼梯平面图

图片尺寸760x537

某工程钢结构楼梯设计cad施工大样图

图片尺寸610x861

建筑图纸楼梯平面图这个楼梯上下指示标的对吗

图片尺寸600x503

二层楼楼梯平面图

图片尺寸450x250

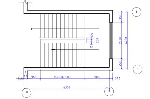
楼梯间平面图

图片尺寸971x513

楼梯平面图

图片尺寸934x569

楼梯平面图表示

图片尺寸1080x810

楼梯间标准层平面图

图片尺寸480x640

金州商贸城建筑图设计参考资料cad图纸标准层地下层楼梯【310】

图片尺寸668x476

楼梯平面图

图片尺寸488x839

楼梯平面图怎么区分是那一层的

图片尺寸1022x855

楼梯平面图 剖面图 这正确吗?

图片尺寸960x1280

请专业人士帮我画出楼梯图.一定要专业.平面图,立面图

图片尺寸581x400

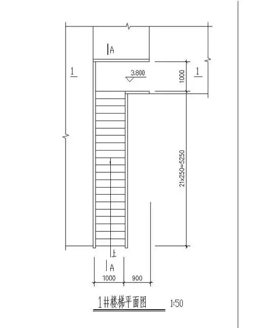
首层楼梯怎么画

图片尺寸773x524

楼梯的平面图

图片尺寸769x506

冷知识,会cad教你画楼梯平面图和立面图

图片尺寸2560x1280

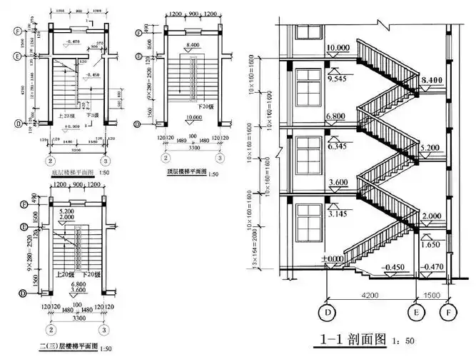
底层楼梯平面图 :50

图片尺寸1080x810

楼梯平面图

图片尺寸960x1280