160槽钢做楼梯放样图

钢楼梯详图

图片尺寸780x541

钢楼梯图集

图片尺寸998x725

槽钢楼梯上下斜口计算公式是什么

图片尺寸500x645

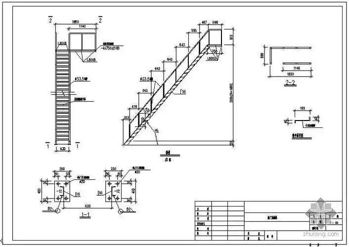
某钢楼梯大样节点构造cad详图

图片尺寸610x450

160槽钢楼梯斜角怎么切

图片尺寸1200x1600

某钢厂烧结矿槽钢楼梯详图

图片尺寸396x336

4部不同种类的钢结构楼梯施工详图

图片尺寸960x720

钢楼梯节点构造详图

图片尺寸544x455

室内施工图钢结构楼梯踏步做法节点大样图

图片尺寸960x1280

钢楼梯图纸

图片尺寸3576x5055

钢结构楼梯大样图

图片尺寸798x600

钢楼梯大样图施工图下载【id:883160166】

图片尺寸1600x1121

槽钢楼梯斜角怎么切?

图片尺寸596x609

槽钢直斜梯下料方法是什么

图片尺寸500x375

某钢楼梯节点构造详图(1)

图片尺寸758x537

钢楼梯大样图

图片尺寸371x311

钢楼梯目前怎么样大概钢楼梯给到的报价会是多少

图片尺寸600x488

钢梯放样方法

图片尺寸800x566

【钢梯大样图】简易钢楼梯做法详图

图片尺寸1311x927

钢梯放样方法

图片尺寸920x1301