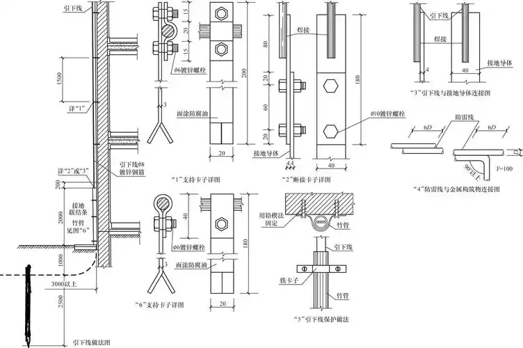
防雷引下线做法大样图

引下线不应少于两根,并应沿建筑物四周均匀或对称布置,其间距不应

图片尺寸581x442

重庆两江酒店防雷引下线

图片尺寸712x990

pd5-2-13 防雷引下线沿墙引下的安装

图片尺寸2417x1607

装配式建筑中防雷引下线的这些难题该怎么解决

图片尺寸1080x791

施焊|引下线|等电位|电阻_网易订阅

图片尺寸561x565

防雷接地施工技术

图片尺寸640x406

pd5-4-9 明敷接地引下线做法及安装

图片尺寸2431x1381

引下线与防雷接地装置的连接

图片尺寸412x419

防雷接点大样图上的柱筋作引下线,桩基础做接地极的示意图中,在距地0.

图片尺寸564x890

关键词: 电气节点详图设备安装大样图防雷接地引下线

图片尺寸486x521

采用双面焊接,搭接长度大于6d防雷引下线焊接质量要点:利用结构柱内

图片尺寸705x831

电缆型号避雷装置说明_word文档在线阅读与下载_无忧文档

图片尺寸563x435

防雷接地大样图_co土木在线图纸下载

图片尺寸560x403

地凯防雷:工程如人品,做工程如同做人!

图片尺寸786x817

[节点详图]综合楼电气工程防雷接地大样图

图片尺寸504x560

本稿件是某别墅防雷设备安装大样图,主要包含柱筋作引下线

图片尺寸560x448

建筑幕墙防雷装置之引下线

图片尺寸388x522

防雷接地方案

图片尺寸670x843

防雷引下线的做法

图片尺寸500x480

pd5-2-11 防雷装置引下线的做法

图片尺寸2355x1639