防雷接地图纸

防雷接地图纸怎么看?

图片尺寸328x300

在防雷接地图纸中这些图例代表的是临时接地柱吗

图片尺寸1473x815

机房防雷接地系统

图片尺寸893x437

防雷接地

图片尺寸857x821

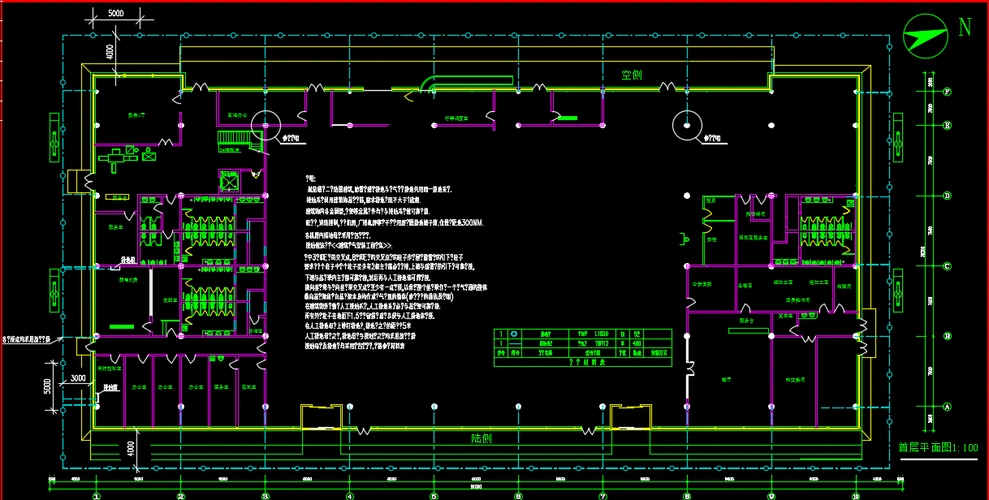
某机场航站楼防雷接地平面图纸

图片尺寸1218x616

一套非常全面的弱电工程防雷接地安装大样图_施工_图纸_文档

图片尺寸1080x409

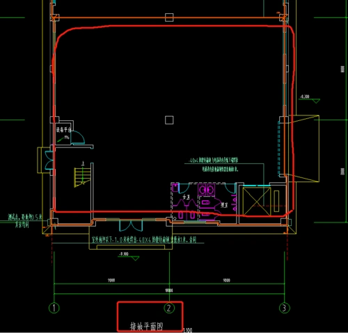
某住宅楼防雷平面图

图片尺寸560x374

某住宅防雷接地平面布置图

图片尺寸560x423

防雷接地图纸怎么看,主要看什么地方?专业知识讲解,一文搞定

图片尺寸630x369

基础防雷接地做法图例

图片尺寸565x930

防雷接地

图片尺寸531x492

防雷接地方案

图片尺寸596x521

解剖室防雷接地平面图免费下载 - 电气图纸 - 土木工程网

图片尺寸725x528

防雷接地平面图- 住宅建筑图纸 - 沐风网

图片尺寸820x327

机房厂房的防雷接地应该怎么做

图片尺寸632x942

防雷接地大样图_cad图纸下载-土木在线

图片尺寸560x403

防雷接地系统

图片尺寸757x520

防雷接地系统应该怎么设计?

图片尺寸740x325

建筑防雷接地工程图的识读方法

图片尺寸640x904

防雷接地示意图

图片尺寸1391x745