室内水电施工图

水电建设预羚该多醋际鞘裁确装修施工

图片尺寸1600x1280

简欧风格家装,水电都有 - cad施工图-图库图块 室内人

图片尺寸1355x968

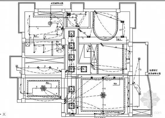
2019年三室两厅装修水电资料下载

图片尺寸560x506

家庭装修中遇到的水电所有疑问,解决方法都在这里

图片尺寸994x610

我想请大侠们帮我设计一张水电布线图纸,急!

图片尺寸1051x1046

这个新房装修的水电图合理吗?

图片尺寸664x567

资深水电工装修时照水电施工图做省钱省心还能多用30年

图片尺寸800x521

装修水电线路怎么走才对

图片尺寸624x442

家装水电施工图要这么看

图片尺寸750x701

天呈海都住宅楼c1户型水电平面图和施工现场相片

图片尺寸1080x1920

家庭装修典型电气图-建筑电气施工图-筑龙电气工程论坛

图片尺寸560x399

谁能给我一套室内改水改电cad图和施工图

图片尺寸560x662

家装水电施工图内容有什么?有何作用?

图片尺寸640x466

2018家装水电安装接线图解新手看水电图纸的技巧

图片尺寸600x429

【装修课堂】隐蔽工程里水电拆改最复杂 这5点禁忌装修小白得留心!

图片尺寸640x574

90平方装修效果图_装修新房用哪种水管好_115平方装修水电费用

图片尺寸2429x1742

装修时必须要知道的18个水电改造注意事项

图片尺寸3508x2479

装修水电改造

图片尺寸1080x747

1 电气安装施工图的识读 图1-1~图1-3分别为某三层(一梯

图片尺寸858x1363

家装水电施工标准是怎么家装水电施工流程

图片尺寸600x400