车间平面布置图

相关图片

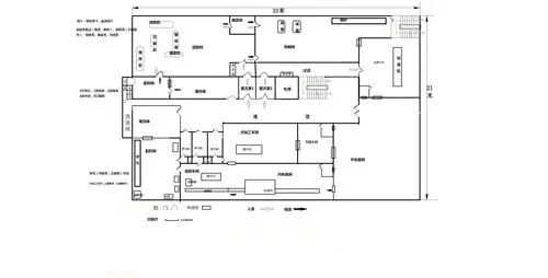
生产部总装车间区域布局图共1页

各位大佬麻烦帮忙看下我这个车间格局是否可以

车间布局

车身维修车间布置方案

生产车间怎么布局合理?

随机推荐

期待杨紫的新古装剧

当初拼命工作的刘德华对初恋女友许下5年之约,而等来的却是女友的婚讯

邓紫棋龙卷风

有没有哪些克苏鲁图片震撼你的心灵?

六年级科学上册第三章第1课水的三态变化1新人教版

762海报印制展板写真喷绘93学校园文化名人名言格言标语雨果3

它(2017),高清剧照,手机锁屏图片 - 回车壁纸

求40左右那种帅帅酷酷的大叔照片