车间布局

相关图片

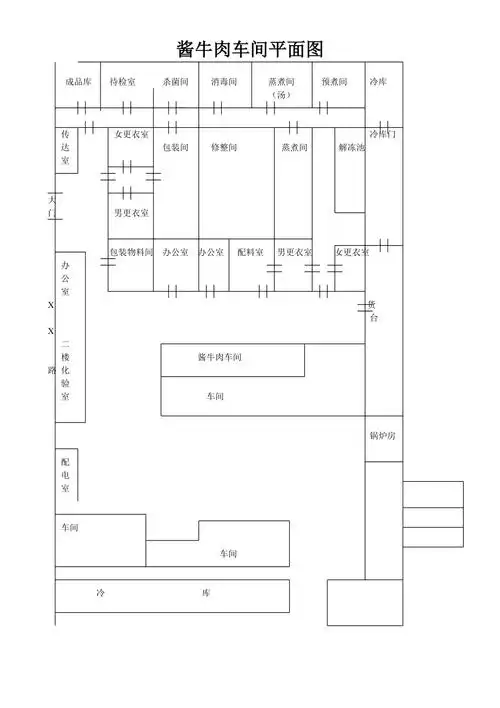
车间平面布置图

车间彩图定做 #平面设计 #平面图代画 #cad画图 #车间 - 抖音

车间定置管理示意图

注塑车间平面图

年产30000吨茶饮料车间布置图

随机推荐

梅琳琳袁弘为什么离婚和袁弘重名的公司职员和他的妻子梅琳琳离婚了

花神下凡!迪丽热巴最新美图|无法自拔_网易订阅

范特西|平面|字体/字形|kuangzilan_原创作品-站酷zcool

张予曦红衣古装美照曝光 精致妆容散发迷人光彩 绝美姿态令人陶醉

相关表情包

小型稻麦脱粒机黄豆打粒机柴电两用水稻脱粒机农用打谷机打场机

来自电视剧上道 - 微博

醉米钟表模型三针联动非联动12小时24小时制大号老师演示学生用