北京某食堂室内装修设计施工图

相关图片

风味餐厅立面图

[广西]梧州大学食堂室内装修施工图

餐厅整体c向立面图

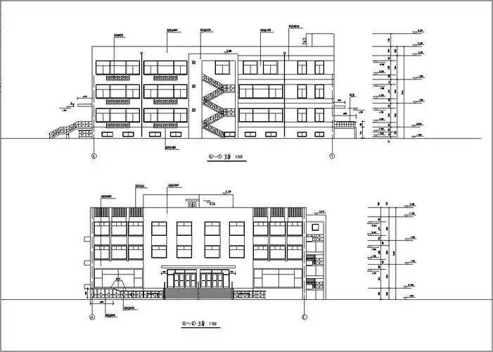
农大东校区食堂建筑设计立面图3

图纸包含一层平面布置图,水电设计说明图,一层食堂南北面立面图,一层

随机推荐

有种"合影"叫胡一天,和谁都是面带微笑,却对她一脸宠溺!

男演员身高有多重要?看《想你》檀健次和《一念》刘宇宁就知道了

哥斯达黎加小烛庄园水洗瑰夏咖啡豆

情侣头像丨值得尝试的情头

s999银圆珠项链女时尚足银珠子银链 男士白银情侣链子银饰 34克6毫米

原创李小璐母亲指责贾乃亮承诺婚后给女儿5次机会一次都没兑现

pomsky美丽的品种头像卡通宠物动物微笑快乐友好蓬松可爱可爱字符吉祥

最新蛇纹身图案大全男女个性蛇纹身设计8