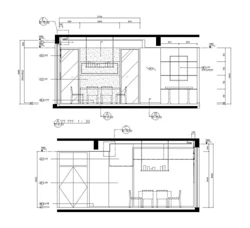
广西大学梧州食堂包厢2cd立面图

相关图片

大厅立面图3

餐厅整体c向立面图

餐厅立面图

某大型餐馆建筑方案设计图_餐厅食堂_土木在线

北京某食堂室内装修设计施工图

随机推荐

《凡人歌》李宗盛演唱 ,原创歌曲简谱,通俗歌曲,国语歌曲谱 - 歌曲

范丞丞超话fcc#范丞丞时空胶囊# 【存|绿洲|2021.4-2021.

孔雪儿 舞台##the9演唱会微指

温柔惊艳又干净的长发女生头像最新

萌萌的油墨猫咪励志文字配图非主流手机壁纸

暗黑战神-游戏图标

p>杭州第二中学滨江校区(hangzhou no.

沈佳妮:低调的女演员,15年来一直没有红,她的丈夫却是大红大紫