[广东]碧水天源高级住宅区全套景观施工图设计(同济)

相关图片

20套公园景观设计施工图cad,一定有你需要的!

公园设计全套施工图(含:绿化布置图,停车路面做法,木栈桥)-公园景观

某休闲公园园林景观施工图

景观施工图 #cad - 抖音

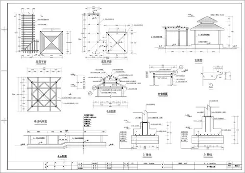
某公园景观设计施工图

随机推荐

南天门

范丞丞童年照曝光,范丞丞真的是从小可爱到大的男生

骚气点的微信头像【点击鼠标右键下载】

查缺补漏2018年的e3大展还有哪些值得期待的vr新闻ea

简单纸折手枪可发子弹模型玩具 手工制作 手工折纸教程 玩具

kda女团时隔两年的回归4k高清mvmore公开帅炸了啊啊啊awsl

抗战剧《星火云雾街》重播,张桐杨若兮主演,王劲松斯琴高娃作配

30 傍晚在京都祇園周边的街道散步