大理石楼梯玻璃栏杆的造型方式及施工要点_石材_mm_底座

相关图片

关於玻璃类,石材类相关节点工艺做法的讲解 - 华文网

玻璃栏杆景观标准化钢化夹胶玻璃常用固定做法图立面cad施工图纸

玻璃扶手通用施工图下载-华建工艺学会

玻璃栏杆省空间的做法_装修_玻璃楼梯扶手_家居家装_硬装_硬装设计

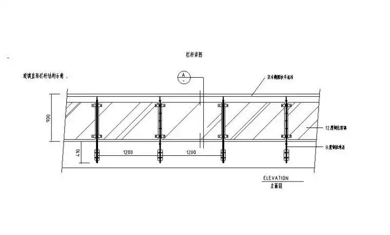
玻璃栏杆结构详图-混凝土节点详图-筑龙结构设计论坛

随机推荐

我长久而又稳定的精神依靠#肖战王一博 #博君一肖 cr:@ - 抖音

白毛藤怎么吃白毛藤的食用方法

大学时就是校草,并和许嵩的表妹余征瑶相恋,度过了快乐的大学生活

魏紫熙精品作品荟萃——人物篇

我得儿意地儿笑金馆长扭动搞笑gif动图_动态图_表情包下载_soogif

《魔兽世界》9.0暗影界地图

中国陆军火箭炮俄媒盘点最厉害武器似导弹

赵娜一嫁演员祝延平二婚杜淳的父亲杜志国如今与儿子相依为命